
项目基本情况简介
项目位置:杭州市拱墅区祥园路28号6号楼2楼
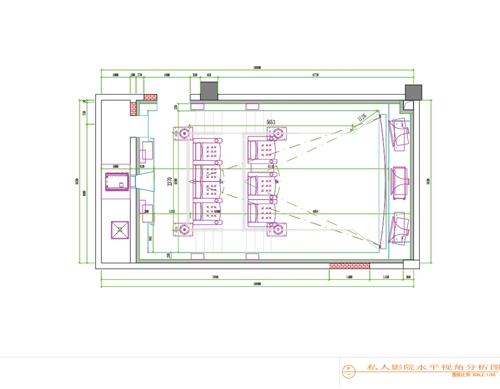
影音室长宽高:9630*5600*5210
系统情况:9.5.6杜比全景声影院系统。
完成时间及投入金额:2019年8月,投入金额200万
设计公司名称、地址、联系方式
设计名称:杭州帮庭智能科技有限公司
地址:杭州市拱墅区祥园路28号乐富智汇园6号楼2楼
联系方式:400-0571-060
设计团队简介

帮庭设计小组成员有陈宇、吴飞彪、彭子飘和蒋伊晨。他们是拥有5年以上的私人影院专业设计团队,秉承着“客户第一、品质第一”服务原则,已为数千名业主提供专业设计咨询服务,为其答疑解难,已成功交付千余例影院落地项目。
主要代表作品:上海金山赞成红树林别墅/安吉罗马风情/诸暨玫瑰园留云苑/杭州风雅钱塘/杭州十方别墅/上海翠湖天地/上海海源别墅/徐州紫薇公馆/杭州溪上玫瑰园/无锡美人鱼风情小镇度假村/义乌树德路别墅/海南三亚晋园别墅等落地项目。

项目需求
打造全景声影院效果和多声道音乐效果。帮庭要做一件改变客户认知的事情,让客户有权知道一个好的影院该有怎样的效果和体验,真正的沉浸式观影是怎样的一种感受。面对大部分客户对音影行业的浅显认知,如何让客户的认知从仅仅停留在功能上升级到“原来私人影院可以做到这种效果”的目标。
设计方案说明



影视厅的风格选择了现代科技风,配上智能控制的灯光效果,一种年轻现代智能的感觉扑面而来。安静舒适的观影环境和专业的影视效果,时刻都让人感受到私人订制,专业设计及专业安装调试带来的好处。
在控制系统设计方面,影院智能控制系统选择美国品牌CONTRON4,工程师通过C4智能控制系统,对相应的设备与灯光进行编程上逻辑控制,让影院便捷的操控与专业化设备调控完美结合,实现一键简单控制。
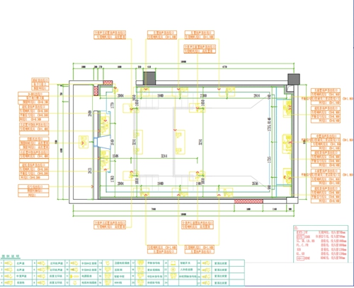
在声学设计方面,在房间搭建之初通过声学软件、计算房间的声学比例、确定吸音区域、确定扩散区。初始房间比例极佳,墙面做了减震隔音墙提升低频吸收量,缩短低频混响。在混响时间上的控制到合适的时间,声音清晰有深度,有空间感。房间的主音箱采用嵌入式安装,前墙整体做音障墙,消除边际效应。通过低音炮摆位精确计算,减小驻波影响。
房间顶面及墙面安装美国questai专业声学模块通过吸音及扩散模块的搭配做中高频的吸音及扩散,将多余的音量吸收,定向反射变为漫反射,形成均衡且饱满的声学环境。

灯光场景设计方面,通过不同的灯光种类:筒灯,壁灯以及RGB全色灯带,来打造几种不同的应用场景配合:观影模式、音乐模式、娱乐模式、游戏模式、休闲模式、TV模式、离开模式等,给影视厅增加不同的娱乐氛围!
施工阶段与音响品牌

施工阶段特殊处理
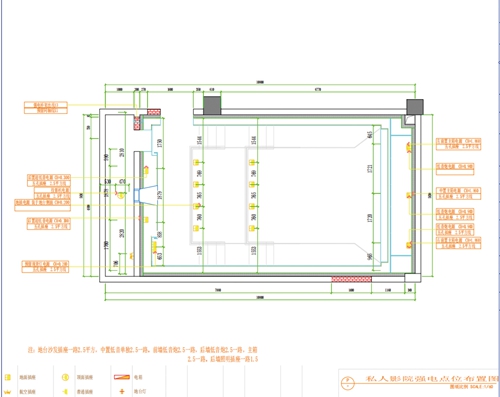
项目在整体施工中充分考虑了房间会引起共振的各个因素,其中有线管,空调管道,声学吊顶都采用减震胶垫进行固定。房间的隔音也严格安装影视厅隔音标准进行施工,对房间的线路及管道进行封堵,以及安装专业隔音门。在声学基层处理上,我们采用了弹力减震墙做为基层。





影院在音响设备选用德国ASCENDO Immersive Audio黑天鹅战斧系列。ASCENDO Immersive Audio所有产品在位于德国安斯巴赫的总部进行开发和制造,并将高端音频与先进的以太网音视频桥接技术( Ethernet-AVB )相结合,通过 AVB 网络能将所有音频数据完全同步和无损地传输,每个扬声器都配有一个可以通过网络进行控制的数字信号处理器( DSP )。
调试心得

ASCENDO Immersive Audio通过软件就能快速精确地对延迟和EQ进行优化。采用同轴单元设计,这意味着声音从一个具备单点声源的统一声中心以对称的形态进行扩散,这样就能实现均匀再现,而且瞬态响应和清晰度也能达到最佳,给我们打造极致音效最佳影院的带来了无与伦比的信心。
器材列表
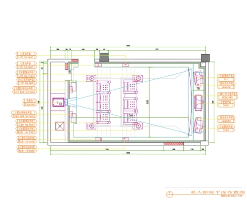
主箱:Black_Swan_Single × 3
环绕:CCRM12-P × 6
全景声:CCRM12-P × 6
低音炮:SMS15 × 4
深浅低音炮:SMSG24 ×1
投影机:明基4KB960
投影幕布:202寸4K微孔透声幕16:9
影视厅灯光场景与设备智能控制系统:CONTRON4
发烧线材:Ethereal(支持4KUHD HDR)12米×2条
Ethereal:发烧喇叭线
Ethereal:发烧定制低音炮线