[导读] 项目位于杭州市钱江新城市民中心旁的高德置地广场,是一家高端美容机构:法国幽兰Orlane美容院。作为全球知名的法国贵族化品牌,幽兰拥有欧洲最大的实验基地之一,在美容及护肤界具有领先和权威地位。
案例提供:杭州西奥视听工程有限公司
投稿工程师:兰晓波
项目位于杭州市钱江新城市民中心旁的高德置地广场,是一家高端美容机构:法国幽兰Orlane美容院。作为全球知名的法国贵族化品牌,幽兰拥有欧洲最大的实验基地之一,在美容及护肤界具有领先和权威地位。
此次Orlane入驻杭州高德置地广场,在这个总面积41万平米,集ICON私邸、Jumeirah七星酒店、商务写字楼、高端购物中心为一体的大型综合体中,将汇聚更多人气,实现新的腾飞。

项目信息
美容院项目位于定字楼北塔6F,整层面积1500㎡左右,入户带宽500兆。


室内包含单人护理间12个、双人护理间2个,员工办公区3间、设备物料间8个,培训室、接待大堂、服务区等等,共30多个房间。除了设备物料间,其他营业区,几乎每天都有大量人流来往,使用的无线终端数量巨大。因此,在营业过程中,对于网络体验的需求也相对较高:全千兆覆盖,稳定、流畅上网是首要保证。
产品选型
结合项目布局规划和项目运营特点,在无线网络的设计上,我们选择了Cetron千兆网络解决方案中的G1000SE和AP1000C的高配部署。
G1000SE作为一款金融级别的无线控制器,可对64台无线AP进行管理,支持1000个终端并发入网,性能强大。AP选择的是千兆吸顶AP1000C,1200Mbps协商速率,同时内置四路PA+LNA组件,提升信号质量,有效保障千兆网络覆盖。
Cetron G1000SE * 1
Cetron AP1000C * 23
PoE交换机 * 1
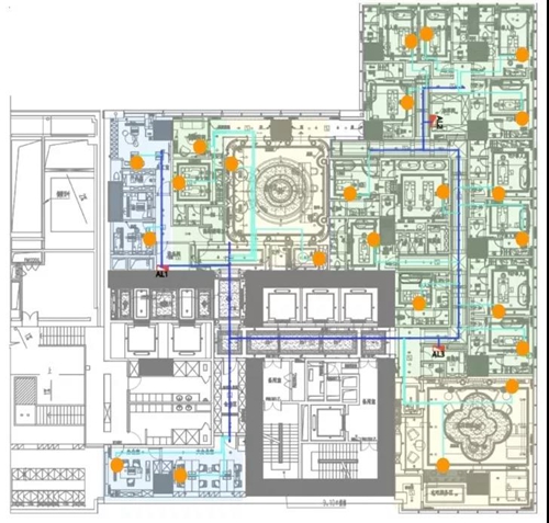
部署思路

从项目空间布局来看,主要分为公共活动区、员工工作区、客户护理区。网络部署也主要覆盖这些区域。
公共活动区:浅黄色区域
包括中间以北的接待大堂,右下角的陈列区,以及两处水吧。此处主要用于接待客户,面积较为宽敞,一共部署了4台AP1000C。
员工工作区:浅蓝色区域
西北方向的员工室、培训室,以及位于两室中间面积较小的产品室和茶室。在此区域部署了2台AP1000C;
西南角有一大一小两个办公室,为了保证员工在办公期间的稳定上网,部署了2台AP1000C。
客户护理区域:浅绿色区域
此区域面积最大,包括单人间12个和双人间2个,和几间设备、物料储藏室。为了充分保障客户在美容护理期间能够实现稳定、高度的网络体验,基本按照一个房间一个AP的部署思路,一共安装了15台AP1000C。
设计心得
目前此项目仍在施工中,前前后后,从网络部署到智能安装,我们投入了巨大的心血和热情,力求每一处呈现都接近完美。商业生活中,网络也是刚需,而且在杭州已经全面迈入千兆网络的环境下,千兆覆盖、稳定流畅成为极重要的业务保障。在整个设计和实施过程中,我们多次和Cetron的技术人员沟通,最终确认了效果最好的设计方案,这是我们对自己的要求,也是对客户的承诺。