
项目基本情况
地理位置:项目位于粤港湾大湾区的“黄金三角中心”,占地总面积约3.87平方公里,坐拥顺德CBD繁华商圈,依畔城央“绿心”顺峰山公园。
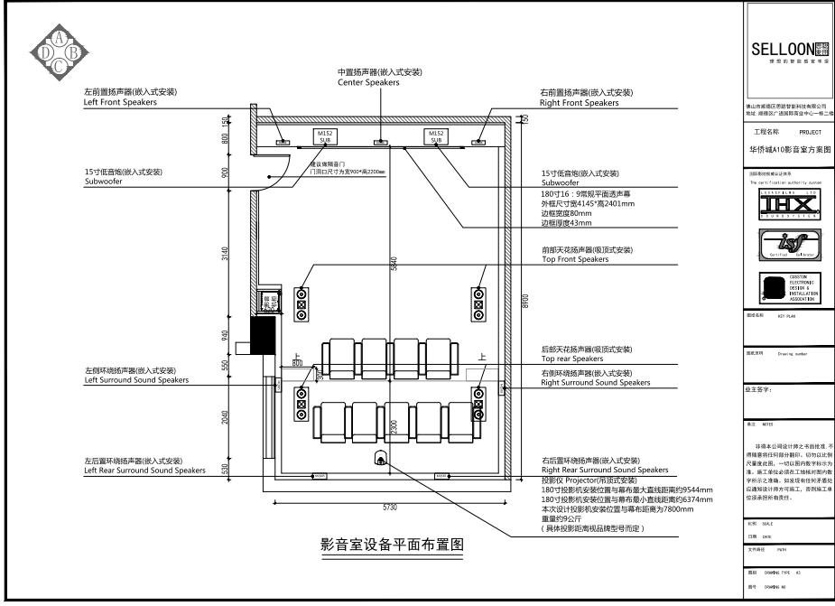
空间信息:影音室位于地下室,长宽高为8900:6190:3100mm。
设计团队:佛山市顺德思聪麦田影音科技有限公司
影音设计师:邹俊毅
用户使用需求
业主对影音室装潢的美观度以及视听效果有高要求。其简洁明了的装潢除了有一定的观赏性之外,更重要的便是让业主能在一个特别布置的氛围影响之下,以更舒适的状态去坐下来欣赏电影。这是一个对于观影状态立竿见影的提升,没有各种器材外露能让业主消除对器材先入为主的感觉,从而实现全身心投入到电影里。

而且业主家人对隔音效果要求高,要求使用隔音减震材料、隔音门要把控落地好。
设计方案说明

本次项目案例的影音设备采用了7.2.4配置,同时整套影院选用美国胜赏SensaSound TP900 THX Ultra认证系列产品,是“THX认证私人影院”项目指定扬声器。TP900箱体面板上的扬声器排列上是哑铃式,扬声器与扬声器之间的距离比较近,这是最小的减少相位差和干涉的最好办法,相信会出不错的声音。再看其外观简洁大方,昂贵的黑色钢琴烤漆显示其高端定位。

这个系列产品通过了严苛的THX认证,由于THX认证是全世界标准最严的音视频认证标准之一,多达500多项测试,所以想通过这个认证的技术指标达难度高,再是开发周期长。
在试听过程中无论多大动态下工作失真始终处于非常低的水平,这对于大口径的扬声器实在难能可贵。所以通过THX认证也就不稀奇了。THX旨在将电影原声,还原到每一个家庭影院空间。TP900 THX Ultra认证系列整套产品都严格按照THX标准设计,紧跟定制安装及THX认证影院私有化路线,是现代私家影院首选产品。

影院的主声道选用三只SensaSound TP900,隐藏在透声幕之后高安装。侧环绕、后环绕则选用了6只通过THX Ultra认证的TP900SS,简单纯粹的原木色墙体和TP900SS消光黑的箱子匹配在一起相得益彰。
同时这款环绕扬声器内部采用Mono-Dipole混合设计,既能营造出宽广的声场,产生很好的的包围感,而且又保障了声音移动时,定位的精准性,这完全是为了家庭影院而生的设计。


搭配2只同样来自美国胜赏SensaSound的TP900SW密闭式低音炮。后级则选用“怪兽级”功放SensaSound TPO-7300,这台7声道后级的用料十足,超大功率输出轻松应对每一只扬声器,不仅声音细节表现出色,且大动态的控制力也十分的游刃有余。

投影机选用来自JVC投影机型号为DLA-X518BC,幕布选择的是180寸16:9带1.4增益微孔平面画框幕,保证了前后三排观众从声音到画面的极致体验。

私人影院意味着专业声学、光学设计与优质影音器材的完美结合,也意味着美轮美奂的电影艺术和生活融为一体,从而达到超越物质的精神愉悦。
设计方案心得
该项目视听室是声学与美学融合的代表,这也是顺德思聪在私人影院领域深耕多年,一直坚持以高标准、严格要求做事准则下的产物,真正做到为客户提供价值与价格相符的视听体验。
设备清单列表
前置、中置音箱:SensaSound TP900 ×3
侧环绕音箱:SensaSound TP900SS ×2
后环绕音箱:SensaSound TP900SS ×2
全景声音箱:SensaSound V5 Signature ×4
低音炮:SensaSound TP900SW ×2
合并功放:Denon AVR-X6400H
后级功放:SensaSound TPO-7300
蓝光机:OPPO UDP-203
硬盘机:海美迪 H10四代
投影机:JVC DLA-X518BC
投影幕:XY 180寸16:9带1.4增益微孔平面画框幕