[导读] 南延线蔚蓝卡地亚位于天府新区,是宜业宜商宜居的国容际现代高端城区。以新古典主义风格诠释新概念,倾力打造品质生活。

项目基本信息
项目位置:南延线蔚蓝卡地亚位于天府新区,是宜业宜商宜居的国容际现代高端城区。以新古典主义风格诠释新概念,倾力打造品质生活。
实施方:东和盛泰智能影音公司
类别性质:独家定制类型多功能影音室
投入资金:50万左右
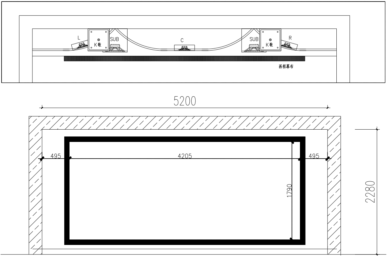
空间信息:长7.2mX5.54m,面积约40平方米

业主基本信息
本次项目对接人是此项目别墅的业主,他是一位艺术家,喜欢温馨的家庭氛围,有浪漫的二人世界(安静在家看场电影),有适合时宜的家庭活动(全家在家K歌娱乐)。

用户基本需求
对于顾家的业主来说,家居中的装修布局要求很多,所以对于项目中的视听室要求非常严格。
首先对于装修的要求,外在整体风格希望大气简约,内在声场声效隔音处理做到不扰邻居,同时希望音效表现还原度高,声音优美耐燥。
其次对于器材的要求,需是国际音响品牌,喜欢定制安装系列的产品,要有杜比全景声的器材搭配。
最后对于K歌系统的要求,全家都喜欢唱歌,每个人声音特色各不相同,希望这套唱歌系统能满足全家声音特色。
项目方案构建过程



整体风格构建

首先是业主对于装修的构建风格希望简单且大气,所以前期集中做了多种影院设计风格供业主选择,以实际测量现场尺寸得出效果图,以及细致全面的施工图,从而将真实1:1高还原度的三维视觉呈现给业主,使其一目了然,以更好理解的方式去诠释风格效果。
空间声场构建

影音室天花云扩散体,其独特的声学特性和多元化的美学装饰效果,可以有效的改善声场环境,从而营造一个良好的声音扩散体系。使其声音更加丰富,均衡,更具空间感,最终能大大增加观影氛围。
墙面分别用弧形声学体、调谐板。弧形声学体是90度水平扩散面,20%不对称狭缝机能宽带吸收,而且内置三角低频吸收腔体,可以实现复合环保声学物质充分填埋处理,从而有效吸收小空间角落250Hz低频声驻波,同时又将集结于角落的有益声能水平扩散回归既定空间,这在最大程度上降低建声系统对声能量的损耗。
调谐板可有效控制声波中的主反射,从而还原厅堂的自然氛围感,同时凸露吸收面立体结构使它有效地改善较大声压级产生的混响,以及回声过多的声叠加可到后空腔扩展配件中,可增加多达一个八度的低音吸收空间容积,亦可与低频下延伸到75Hz,使其在大动态音频应用时成为低频响音中理想的低音陷阱。
所以这种设计方式可达到业主要求,真正做到不扰邻居,同时音效表现还原度高。
器材选择
达尼 PHANTOM S系列

满足业主另一要求是器材选择,为此选择丹麦达尼国际一线音响品牌,凭借三十余年经验和全球顾客认可,达尼在全球拥有100万以上的满意用户。
达尼 PHANTOM S系列是呈献完美音质的顶级入墙式音箱。它采用8英寸主动式低音单元的最优化设计,所以无论低音或中音区域均表现完美。其次为确保最佳低音表现,该系列中较大型的两款音箱额外配置了10英寸被动辅助低音单元,同时配合主动式低音单元,达到输出全音域出色表现,最终丝毫不逊于落地式音箱。
该系列超薄箱体设计可轻易融入几乎任何标准墙面。所有款型均以可旋转式混合高音模组为中心组合,便于适应任何音响用途,无论是立体声、中央声道或环绕声,均游刃有余。
采用久经验证的多种音响技术,如实心中密度纤维前障板、木纤维纸质音盆、低损折环和顶尖磁路系统设计,结合最前沿创新成果软磁性复合物(SMC)磁极柱,以及标志性混合高音模组,所以PHANTOM S系列品质出类拔萃。
该款产品核心优势在于完美呈现高亢或舒缓的音乐,并且无论音量大小都能带来纯净音质,带来丰富细节和立体感的声场,从而满足业主对于音效表现“还原度高,声音优美耐燥”的要求。
索尼VPL-VW278

索尼VPL-VW278配置专门为4K超高清而打造的0.74英寸SXRD显示芯片,它拥有4096×2160的画面分辨率,同时搭配成熟的高压水银灯泡光源,既有不错的画面能量感与塑造力,同样也能呈现出不俗的色彩还原度。
而在HDR方面,与索尼其他几款机型相同,都能兼容HDR10与HLG两种规格,要应对主流的UHD 4K超高清蓝光的播放绰绰有余。而机身之中还配备了大范围的电动变焦镜头,以及带有大范围的镜头位移功能,这
对于一款4K主流定位的机型并不多见,但非常便于安装与调校。
此外,索尼VPL-VW278还具有独特的真实创作功能、特丽魅彩显示技术以及Motionflow动态影像补偿技术,可有效地提升画面在细节锐度以及动态影像方面的表现力。
索尼VPL-VW278在外形上一改以往浓重的专业气息,选用了时尚感十足的全白外形,即使直接放置在桌面上投射也能够轻松融入年轻前卫的家居装潢环境之中。
K歌系统

为满足业主对于K歌系统的要求,本次项目采用先前影音室的声学设计,而且在KTV方案中选择美国JBL品牌作为KTV音箱,它是专门为家庭娱乐设计的KES8120/KI110,其合理精确的分频设计可有效平衡完善各扬声器单元的不同特性,最终达到各频率平衡效果。
它可以实现在听觉上音阶协调、声像准确、乐感清晰、层次分明、舒适、低频饱满有弹性,而且在中高频上体现细腻、宽广、自然、甜美的音质效果。进而满足全家声音特色。
设计心得
影院方案的落实,从构思到细节体现专业性,都需要一个公司对一个行业的追求,更需要一颗爱这行业的心。本次项目设计团队由繁至简,让影音室更纯粹,充分利用更多的空间,以及真正考虑到细节以及影院真实声音。
一套好的影音器材没有一个好的听音环境做配合,是无法发挥其效果的,优良的听音空间对提高音响效果意义重大。
项目设备清单
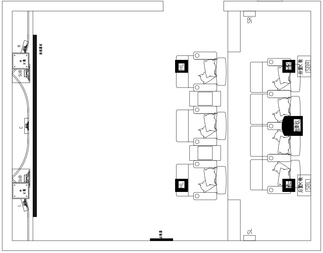
丹麦达尼7.2.4杜比全景声影院系统
主中音响:丹麦达尼/PHANTOM S-80 X 3只
环绕音响:丹麦达尼/OPTICON LCR X 4只
吸顶音响:丹麦达尼/PHANTOM H-60 X 4只
低音炮:丹麦达尼/SUB K-14F X 2只
前级功放:天龙/AVC-X6500H X 1台
后级功放:ATI/1807 X 1台
投影机:索尼/VPL-VW278 X 1台
画框幕布:OS/150寸透声 X 1幅
硬盘播放器:海美迪/HD920B II X 1台
美国JBL家庭K歌系统
前置音响:美国JBL/KES 8120 X 2只
后置音响:美国JBL/KI 110 X 2只
专业功放:JBL X8×1台 JBL X4×1台
音效器:派对屋/A6 X 1台
无线话筒:韩国BBS/Q8 X 1套
点歌器:视易/K72 X 1套